Concevoir une maison en L de plain-pied avec trois chambres séduit de plus en plus de futurs propriétaires en quête de confort, de fonctionnalité et d’esthétisme. Ce type de plan offre une organisation intelligente des espaces, permettant de bien séparer les zones de vie et les espaces nuit tout en favorisant la luminosité et l’ouverture sur l’extérieur.
Personnalisation et optimisation du plan maison plain pied 3 chambres en L selon vos besoins spécifiques
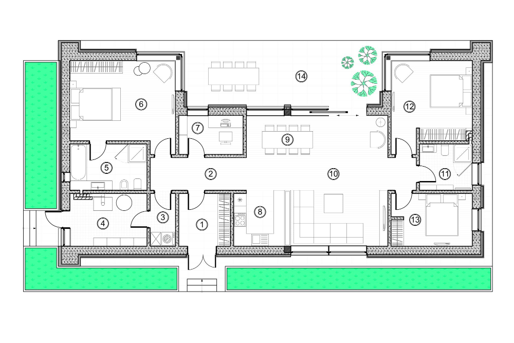
Personnaliser un plan de maison en L plain pied avec trois chambres est une étape incontournable pour que votre habitat réponde parfaitement à votre quotidien. Avec l’émergence de nouvelles technologies et matériaux, il est possible d’adapter chaque détail pour optimiser la praticité tout en conservant une esthétique raffinée.
Par exemple, dans un projet typique d’une maison à 3 chambres, vous pouvez choisir de transformer une chambre en bureau pour télétravail, un besoin devenu essentiel ces dernières années. Cette adaptation nécessite un aménagement spécifique, notamment un bon isolement phonique et la proximité d’une salle d’eau pour plus de commodité. Le plan en L facilite ce type de configuration en isolant clairement les espaces de travail des espaces de vie.
La cuisine, souvent cœur de la maison, peut être pensée en ouverture totale sur le séjour pour amplifier les volumes et la luminosité. En plaçant la cuisine dans l’angle intérieur du L, vous créez un espace dédié tout en gardant un lien visuel direct avec les pièces à vivre. Les matériaux modernes, comme les plans de travail en quartz ou les équipements connectés, viennent compléter cette personnalisation pour plus de confort et d’efficacité.
Un autre élément à ne pas négliger est l’orientation du bâti. En jouant sur l’implantation du L, il est possible d’optimiser la captation des apports solaires tout en minimisant l’exposition au vent. Cette approche passive est essentielle dans le cadre des réglementations RE2020, qui encouragent à concevoir des maisons à basse consommation énergétique.
Par exemple, en orientant les pièces principales vers le sud, vous maximisez la chaleur naturelle pendant l’hiver, tandis que le prolongement du L vers l’est ou l’ouest permet de bénéficier d’une lumière douce le matin ou le soir. Divers aménagements personnalisables peuvent également être envisagés dans les espaces annexes, comme l’intégration d’un garage ou d’une arrière-cuisine fonctionnelle.
Celle-ci, directement reliée à la cuisine principale, facilite les rangements et les opérations de stockage. Les rangements intégrés dans les chambres ou le séjour viennent compléter la fonctionnalité globale. Pour illustrer l’importance de cette personnalisation, prenons le cas d’une famille avec deux enfants et un parent travaillant à domicile.
Le plan la maison en L offre la possibilité d’un alignement des chambres au calme, tandis que le parent bénéficie d’un bureau indépendant, au calme, installée dans une pièce adaptée sans être isolée du reste de la maison. L’aménagement de la terrasse dans le coin formé par le L devient alors un espace privilégié pour se détendre après une journée bien remplie.
Conformité RE2020 et impact sur la conception des plans de maison plain pied 3 chambres en L
Depuis l’entrée en vigueur des normes RE2020, tous les nouveaux projets de construction en France doivent répondre à des exigences strictes en matière de performance énergétique et environnementale. Ces contraintes jouent un rôle déterminant dans la conception des plans de maisons plain pied, notamment celles configurées en L avec 3 chambres.
Le défi est double : il faut à la fois respecter les principes d’isolation renforcée, de ventilation performante et d’optimisation des apports solaires, tout en conservant un agencement convivial et ergonomique. La forme en L devient un atout car elle permet d’organiser les volumes en maximisant l’exposition de la maison à la lumière naturelle, un critère déterminant pour réduire la consommation d’énergie liée à l’éclairage et au chauffage.
Les matériaux de construction font également l’objet d’une sélection rigoureuse. L’emploi de nouveaux isolants naturels, associée à une pose soignée des menuiseries offrant une excellente étanchéité à l’air, garantit une maison conforme aux exigences RE2020. En parallèle, l’intégration de systèmes énergétiques renouvelables, comme des panneaux photovoltaïques sur les toitures plates ou légèrement inclinées, devient un standard dans ces constructions.
Dans un plan maison plain pied 3 chambres en L, les espaces de vie bénéficient souvent d’un positionnement stratégique pour capter la chaleur naturelle en hiver et favoriser la ventilation traversante en été. Par exemple, l’implantation du séjour à la pointe du L, doté d’ouvertures vers plusieurs côtés, facilite la circulation de l’air, évitant ainsi l’usage systématique de la climatisation.
Un autre point important relève de la récupération et du traitement des eaux, désormais intégrés dans la conception grâce à des systèmes de récupération des eaux de pluie pour l’arrosage, ou encore des dispositifs de filtration écologique adaptés à la maison type plain pied. Cette approche globale s’inscrit pleinement dans la quête d’un habitat responsable qui conjugue bien-être et respect de l’environnement.

Enfin, la réglementation incite les constructeurs à rendre la maison durable dans le temps, donc évolutive. Il est ainsi fréquent de voir des plans proposant des combinaisons modulables, où une chambre supplémentaire peut évoluer en pièce multi-usage, tout en conservant les exigences d’isolation et d’efficacité énergétique.
Les étapes clés pour bien réussir la réalisation de votre projet de plan maison en L plain pied 3 chambres
Concevoir et faire construire une maison plain pied en L avec 3 chambres est un projet ambitieux qui nécessite une bonne préparation et un suivi rigoureux. L’expérience montre que respecter un certain nombre d’étapes, en gardant en tête les besoins de la famille et le contexte du terrain, facilite un déroulement serein et aboutit à un habitat durable et confortable.
La première étape consiste à définir précisément vos besoins : nombre de personnes, habitudes de vie, envies d’extensions futures, ou encore choix esthétiques. Cette phase est déterminante car elle conditionne l’implémentation optimale du plan.
Par exemple, une famille active avec enfants préférera sans doute un plan où les chambres sont proches les unes des autres, tandis qu’un couple souhaitant recevoir pourra privilégier une chambre d’ami éloignée avec salle d’eau indépendante. Ensuite, il faut bien choisir le terrain. La configuration du terrain influence grandement la conception de la maison en L.

Les caractéristiques naturelles, comme la pente, la végétation ou l’ensoleillement, orienteront l’implantation, avec parfois des contraintes qui imposent une adaptation technique (fonds de terrain, accès, réseau). Une étude préalable permettra d’anticiper ces éléments afin d’éviter de mauvaises surprises lors de la construction.
La collaboration avec un constructeur ou un architecte spécialisé dans les maisons plain pied 3 chambres en L s’avère précieuse. Ces experts disposent d’une connaissance approfondie des contraintes actuelles, notamment la conformité aux normes RE2020, et peuvent vous proposer plusieurs plans personnalisables pour répondre au mieux à vos attentes.
Beaucoup de professionnels intègrent également des outils numériques de modélisation 3D facilitant la visualisation finale. L’étape de dépôt du permis de construire suivra l’achèvement du dessin finalisé. Il est important d’anticiper un délai administratif qui peut varier selon les communes.
Une fois la validation obtenue, la phase de chantier commence alors avec le choix des matériaux, la planification des interventions et le suivi régulier des travaux. Des visites fréquentes sur site permettent d’ajuster les détails si nécessaire. Enfin, une fois les travaux terminés, il convient de se projeter dans l’aménagement intérieur et l’organisation de l’espace extérieur, en tenant compte des dimensions et spécificités du plan.
Le coin formé par la maison en L est souvent exploité pour créer un jardin à la fois esthétique et fonctionnel, intégrant parfois un abri voiture, une piscine ou une terrasse couverte. Ce moment marque la concrétisation du projet et l’entrée dans une vie quotidienne vers laquelle tout le processus était orienté.
